Petite commune dynamique de Gironde (33), Vayres accueille depuis peu un nouveau projet immobilier. Le lotissement « Les Jardins de Menaut » propose plusieurs terrains à vendre, viabilisés et libres de constructeur. Une belle opportunité pour faire construire dans un environnement calme et verdoyant, entre Bordeaux et Libourne !
Un cadre de vie idéal, entre Bordeaux et Libourne
Située dans le département de la Gironde (33), en région Nouvelle-Aquitaine, Vayres est une commune à taille humaine qui profite de nombreux atouts. À deux pas des vignes du libournais, elle offre d’abord à ses habitants un cadre de vie agréable. En plus d’un environnement naturel et verdoyant, le village abrite un riche patrimoine historique (le château de Vayres et l’église Saint-Jean-Baptiste, notamment). Il s’agit en effet de l’une des agglomérations les plus anciennes de la région (des découvertes archéologiques attestent de la présence de l’homme dès le paléolithique !).
Mais cette petite commune du sud-ouest profite surtout d’un emplacement stratégique ! Faisant partie de l’aire d’attraction de Bordeaux, Vayres est en effet située à moins de 10 kilomètres de Libourne, à 12 kilomètres de Saint-Émilion et à seulement 30 kilomètres de Bordeaux. La commune est desservie par le TER, et par un très bon réseau routier et autoroutier. Ses habitants peuvent ainsi rejoindre facilement le centre de ces villes dynamiques et attractives. Ils profitent aussi de la proximité directe de l’aéroport Bordeaux Mérignac et de la gare TGV de Bordeaux Saint-Jean. Et les plages du Bassin d’Arcachon ne sont situées qu’à une heure de voiture !

En plus d’offrir à ses habitants un cadre de vie agréable et un emplacement privilégié, Vayres abrite tous les équipements et services nécessaires au quotidien. La commune accueille une école et des infrastructures sportives (un city stade, des terrains de foot et de tennis, un centre équestre et des salles de danse…), des services de santé et des commerces de proximité…
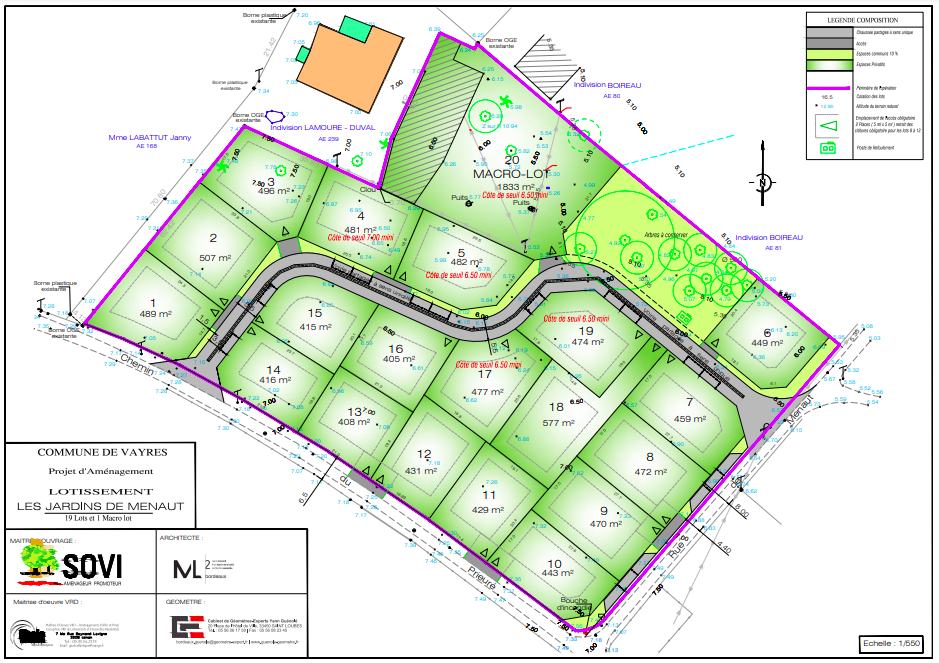
Plusieurs terrains à vendre dans un nouveau lotissement !
La commune de Vayres connaît depuis plusieurs années une importante expansion démographique. Pour continuer à accueillir de nouveaux habitants, elle a récemment validé l’aménagement d’un nouveau lotissement. Développé par l’aménageur aquitain SOVI, le lotissement « Les Jardins de Menaut » propose plusieurs terrains à vendre.
Composé au total de 19 lots, ce nouveau projet à taille humaine permet de faire construire sa maison neuve dans un environnement calme et privilégié, entre rivière et forêt. Le lotissement « Les Jardins de Menaut » est bordé de paysages naturels remarquables, avec tous les avantages de la vie urbaine à portée de main !

Ces nouveaux terrains à vendre sont entièrement viabilisés. Ils sont raccordés à tous les réseaux nécessaires (assainissement et eau potable, éléctricité, télécoms…). Avec des surfaces comprises entre 405 et 577 m2, ils permettent de faire construire des maisons familiales avec un petit jardin privatif. Idéal pour profiter d’un espace extérieur, sans devoir passer ses week-ends à l’entretenir ! Les terrains sont proposés à partir de 130 000 euros. Pour en savoir plus, n’hésitez pas à contacter les équipes de SOVI Aménageur Promoteur.

Aucun commentaire
Partagez votre avis et découvrez celui des autres.
Soyez le premier à donner votre avis !